1 / 0



Verifique se o produto é compatível
Como encontrar o seu E-Número
Comece a procura introduzindo o número de modelo (E-Nr) do eletrodoméstico.
Visão Geral Técnica
Acessório adequado para os seguintes produtos:
Cozinha
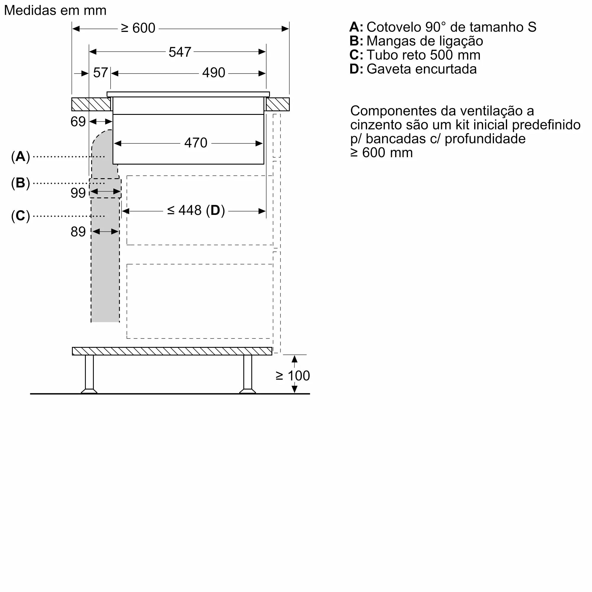
Especificações
Conjunto de acessórios para a instalação da placa de indução com ventilação integrada em modo de saída de ar em bancadas com profundidade de 60 cm ou mais.
Incluí:
4 filtros acústicos para uma diminuição significativa do ruído e das perturbações acústicas.
1 curva 90º vertical para tubos planos “S” (macho)
1 elemento de união (femea) para combinar elementos planos macho
Tubo plano (macho, 500 mm)
Este elemento cumpre com o teste de ensaio do queimador-agulha (de acordo com a norma IEC 60695-11-5) e a classe de material de construção B1 (DIN 4102-1).
Elementos adicionais deverão ser selecionados e encomendados de acordo com a situação específica de cada instalação.